Bilocale in vendita

Tessennano, Piazzale Matteo Balsi
€ 29.000
2 locali 2 locali
45 Mq 45 Mq
1 bagno 1 bagno

Bilocale in vendita

Tessennano, Piazzale Matteo Balsi

Descrizione annuncio

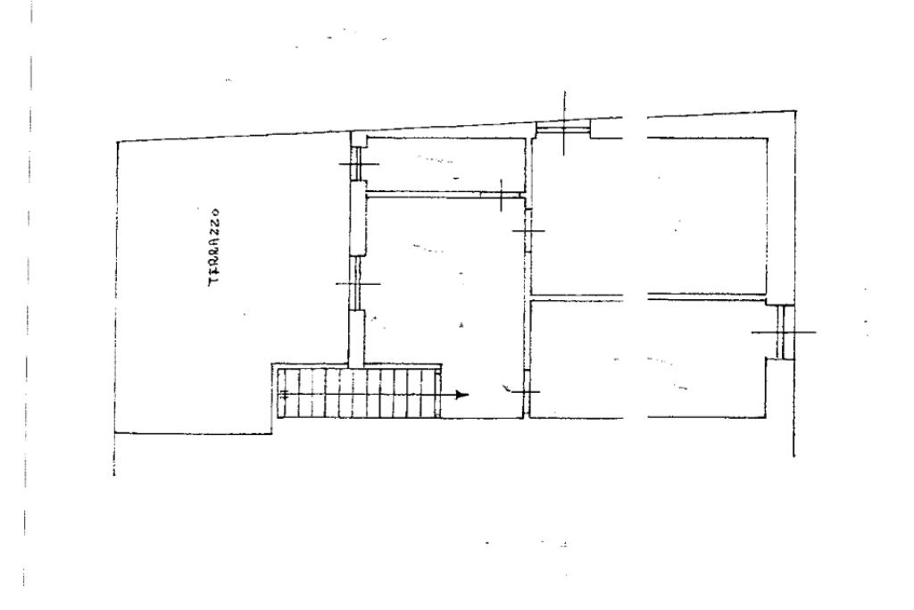
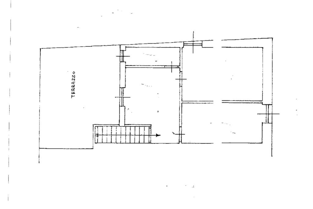
Nel cuore del suggestivo comune di Tessennano, proponiamo in vendita un accogliente appartamento di 45 mq, situato all'ultimo piano di un edificio composto da sole tre unità abitative. Questa soluzione abitativa, costruita nel 1950, offre un ambiente intimo e tranquillo, ideale per chi cerca serenità e comfort.

L'appartamento si compone di due locali ben distribuiti, caratterizzati da una luminosità naturale che pervade ogni angolo. Uno dei punti di forza è il terrazzo, che regala una vista panoramica sui dintorni, perfetto per momenti di relax all'aperto. La posizione strategica e la struttura dell'immobile garantiscono un'atmosfera riservata, pur essendo a breve distanza dalla piazza del paese. Un'opportunità unica per chi desidera vivere in un contesto tranquillo e caratteristico, senza rinunciare alla comodità.

Mostra tutto

Nelle vicinanze

Trasporto pubblico Trasporto pubblico
Trasporto pubblico
2,0 Km
Mostra tutto

Caratteristiche

Rif.:
61117324
Piano:
2 di 3 (ultimo Piano)
Terrazzi:
1
Camere da letto:
2
Arredamento:
Completo
Condizionamento:
Assente
Mostra tutto
Prezzo Prezzo
€ 29.000
Rata mutuo Rata mutuo
€ 138 / mese
Spese annue Spese annue
€ 0
Proponi il tuo prezzoProponi il tuo prezzo

Altre caratteristiche

Classe Energetica

G
G
G
G
G
G
G
G
G
EP globale non rinnovabile:
287.78 kW h/m² anno
EP globale rinnovabile:
175.00 kW h/m² anno
EP invernale del fabbricato:
EP estiva del fabbricato:
Anno di costruzione:
1950
Riscaldamento:
Assente

Ti interessa visionare l'immobile?

Fissa un appuntamento  Fissa un appuntamento

Richiedi informazioni

Clicca su Leggi per aprire l'informativa
* Questi campi sono obbligatori

Calcola il tuo mutuo

Semplice e senza impegno
Anticipo

( % )
Mutuo

( % )

pochi semplici passi

inserisci i tuoi dati
Questionario completato
Grazie per aver richiesto un appuntamento senza impegno con un nostro Consulente del Credito e Assicurativo.

Hai inserito correttamente tutti i dati necessari e a breve riceverai una e-mail con un link da convalidare per inviare i tuoi dati.
Affiliato
Tnt Immobiliare Srl
Via Roma, 33/35 01017 Tuscania (VT)

Il nostro staff


  • Nunzio Bussi
    Affiliato

  • Marica Liberati
    Collaboratrice

  • Giordano Lippi
    Responsabile

  • Emanuela Livi
    Collaboratrice

  • Margaret Muratore
    Collaboratrice

  • Claudia Aritzu
    Coordinatrice
Via Roma, 33/35 01017 Tuscania (VT)
Zona: Tuscania- Piansano - Arlena di Castro - Canino - Cellere
Mostra su mappa
Orari: Orario Invernale. Dal martedì al venerdì 09.00 - 13.00 - 15.30 - 19.30; sabato 09.00 - 13.00 - 15.30 - 18.30. Domenica e Lunedi chiuso.
Affiliato
Tnt Immobiliare Srl
Via Roma, 33/35 01017 Tuscania (VT)

2026 Tecnocasa Franchising S.p.A. - P. IVA 08365160152 - Via Monte Bianco 60/A 20089 Rozzano (MI). Ogni agenzia ha un proprio titolare ed è autonoma. Privacy policy | Policy utilizzo | Cookie policy